寝殿造 6.3.1 里内裏・大炊御門万里小路殿  2016.11.17 

先にこれから見て行く鎌倉時代後期の洛中の御所の位置を示しておく。この他に山荘御所はあるが。

寝殿造・大炊御門殿

川上貢『日本中世住宅の研究』より

概況

里内裏・大炊御門殿は「透渡廊の消滅と母屋の変化」で紹介した九条兼実の冷泉万里小路第である。ただし建て替えはされているかもしれない。 

仁治3年(1242)正月9日の四条天皇崩御する。このとき九条道家ら公卿たちは、順徳上皇の皇子を擁立しようとしたが、鎌倉北条泰時らは、承久の乱の関係者の順徳上皇の皇子擁立に反対し、中立的立場であった土御門上皇の子邦仁王を強力に押す。そして、それまで不遇を託い、20歳を過ぎても出家も元服もままならなかった邦仁王が同月20日に、祖母の承明門院御所より四条隆親のこの大炊御門万里小路亭に入り即位した。後嵯峨天皇である。

後嵯峨天皇は鎌倉のおかげで不遇の身から一転して天皇となれたことから、鎌倉とは良好な関係を心がけ、鎌倉とも親しい西園寺実氏の長女を中宮に迎える。権大納言であった四条隆親は妻(足利義氏の娘)が子邦仁王の乳母であった。四条隆親はその娘が後嵯峨天皇の祖母承明門院兼実を失脚させた源通親娘)の甥にあたる久我雅忠の妻(『とはずがたり』の著者二条の母)であり、承明門院とは近親関係にある。

そしてその妻は典侍となり、四条隆親は宝治元年(1247年)に中宮大夫を兼ね、宝治2年(1248年)には皇后宮大夫を兼任、建長2年(1250年)に権がとれて大納言となる。後嵯峨天皇の中宮となった西園寺実氏の長女は、母が四条隆親の同母兄弟であり、四条隆親は後嵯峨天皇の中宮の叔父にあたる。その中宮は、『とはずがたり』の登場人物で、南北朝両統の祖ともなる後深草亀山両天皇の生母となり、院号を得て大宮院となる。四条隆親の妹の一人は西園寺実氏の子・公基の妻。別の妹は後嵯峨院の後宮に入り子を産んでいる。つまり後嵯峨天皇即位を京でバックアップしたのが、姻戚関係にある四条隆親と西園寺実氏である。

この御所は当初は四条隆親を家主とする里内裏であったが、どの段階でか所有権は後嵯峨院に移ったらしく、文永9年(1273)正月15日付の「後嵯峨院御処分状」によると、院はこの御所を亀山天皇に譲渡していてる。亀山院は次にその子後宇多院が相続し、後宇多院の後はその弟・恒明親王に譲るよう遺言している。この大炊御門殿はその間大覚寺統の本所として重要な御所であった。それに対する持明院統の本所御所は富小路殿である。
大炊御門殿は正嘉二年(1258)にはじまり、文応元年(1260)、文永十年(1273)、弘安11年(1288)、そして元応元年(1319)と五度も焼失し、弘安11年まではその都度再建されたが、元応元年(1319)焼失の後は再建されないで終った。それは後宇多院が主に晩年は大覚寺に造立された御所に居住しており、この御所の最後の相承者恒明親王常磐井殿を居所としたためである。

位置

この御所の位置は大炊御門大路の南、冷泉小路の北、万里小路の西、高倉小路の東である。
この御所は方一町の地を占め東を晴とすしたが、同じ屋敷が冷泉万里小路第と呼ばれたり、大炊御門万里小路殿と呼ばれたりするのは、屋敷の位置が大炊御門小路の南、冷泉小路の北、万里小路の西にあったからである。京では冷泉とか大炊御門とかは地名ではなく路である。屋敷に固有名詞は無い。

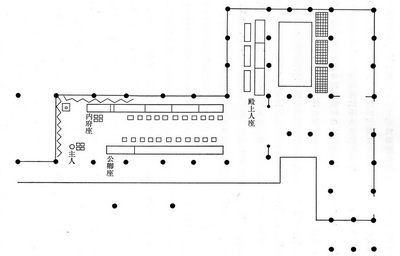
正元元年(1259)8月28日時点での構成

  • 寝殿、卯酉廊、東対代、透渡殿、東中門廊、東中門、御念講堂、西中門、車宿 (旧版 p.25)
    卯酉(ぼうゆう)廊が二棟廊だろう。


里内裏・大炊御門殿

文永10年まで(-1273)の構成

この時期の殿舎は次ぎの通り。

  • 寝殿、東中門、東中門廊、透渡殿、二棟廊、文殿(殿上・侍廊の一部)
    (なお、車宿、随身所。の記載が無いが、無い訳はない。)
  • 西渡殿、西中門、一対小御所
  • 東四脚門(万里小路面(東面)南端の門) 、東面北門、西門

この屋敷には文治3年(1187)の九条兼実の大饗の指図の他、御所時代には文永元年(1264)7月、文永2年(1263)8月、文永8年(1271)3月(オレンジ)、の仏事の指図が『門葉記』に残る。そこで三つの指図の情報を合わせるとこういう平面図が出来上がる。

寝殿造・大炊御門殿

  1. 文永元年(1264)7月は黄色の部分。
  2. 文永2年(1263)8月は黄色から上一コマを除く母屋と南庇のスペース。
  3. 文永8年(1271)3月は西側のオレンジの部分の指図のスペース。
  4. グレー部分は文治3年(1187の九条兼実の大饗指図から。

北孫庇に相当する部分は『門葉記』の三つの指図には見えないが、文治3年(1187)の大饗の指図から判断する二棟廊の位置から、及び、母屋と北庇の間を並戸で仕切っていることから、旧来の孫庇部分もあると推定する。文治3年(1187)から文永元年(1264)まで77年もあるが、里内裏や院御所を参議藤原隆房の屋敷だった時よりより小さくはすまい。二棟廊の桁行がより長く、公卿座の梁行を二間に、とかの拡張はあるだろうが。川上貢もほぼ踏襲されたと見ている。

御聴聞所は文永元年(1264)7月には黄色の道場の西、オレンジの部分が宛てられ、文永2年(1263)8月には黄色い道場の北、北比差披の中央が宛てられた。文永8年(1271)3月のオレンジの部分が道場となった時の指図には御聴聞所の記載は無いが、おそらくその東側と思われる。しかし柱の配列が変だ。まるで七間二面屋のように見える。下に古典的な寝殿の、屋根に対応した構造ベージュの濃淡で示す。

寝殿造・大炊御門殿

仮の住まいではなくて、大覚寺統の本所として重要な御所でああるので、屋根が切妻ということはあるまい。小屋組(屋根の架構)は入母屋のはずだ。なのに母屋両脇の中央の柱が無い。そして母屋の中に柱が一本立っている。

もしかすると北庇と北孫庇は一体化して、梁行二間の空間を遣戸障子でいくつかに間仕切りされていたのかもしれない。屋根の形、旧来の母屋・庇構造を無視し、平面図で判明している建具等を参考に、スペースの分割を想像して色分けする下のようになる。あくまで想像だが、北西のグレーの部分あたりが障子帳(寝室)、その東隣の二間×二間ぐらいが常御所というのが在りそうなパターンである。

寝殿造・大炊御門殿

建物の構造はそれまでの母屋・庇の構造を踏襲しながらも、平面としては並戸で北と南に大きく分割し、北庇の七間×二間も、中央の七間×二間も、後付の間仕切りで自由に仕切れるようになっているように思える。赤の柱も、構造材としての、梁を支える柱ではなくて、遣戸障子を仕切る後付の柱ではないだろうか。既に今出川殿でも述べたが、母屋東西面中央の柱が無くとも、入母屋屋根の架構は作れると思う。貫(ぬき)もあるのだから。
なお、この御所は文永10年(1273)に焼失した。

弘安以降(1278-)

次ぎの再建は遅くとも弘安元年(1278)までには再建されているようで、同年閏10月13日に二条高倉殿が焼失したとき、天皇がここに移り、それまで住んでいた亀山上皇が常磐井殿に移っている。

ならば天皇が常磐井殿に移れば良いではないかと思うが、常磐井殿は京極大路の東、つまり洛外なので、内裏とする訳にはいかなかったのだろう。

弘安以降の構成

この時期の殿舎は次ぎの通り。

  • 寝殿、東中門、東中門廊、透渡殿、二棟廊、車宿、随身所。
    (なお、殿上(侍廊)の記載が無いが、無い訳はない。)
  • 東対代、(弘御所)、念誦堂、西渡殿、西中門、小御所、北対
  • 東四脚門 、東北門、西門、北門

残る指図

この時期に残る指図は、『門葉記』正安4年(1303)8月29日の、公卿座を道場とした仏事の指図だけである。

寝殿造・大炊御門殿

以前と違う点は、一間東にずれ、以前に格子があった場所が弘庇になり、御聴聞所の存在から、公卿座の建物は少なくとも梁行二間(弘庇を入れて三間)以上であることが明らかになったことである。こうなるとこの公卿座はむしろ東対代の一部ということになる。

全体の構成

しかし殿上(侍廊)は何処にあったのだろうか。通例では殿上(侍廊)、念誦堂、車宿、随身所は以下のような配置になる。この時代最上級の院御所・里内裏の寝殿造なので、この殿舎構成が崩れるとは思いにくい。

寝殿造・大炊御門殿

弘安2年(1279)8月18日時点で、二棟廊は亀山院の皇子の御所、寝殿には亀山院の常御所があった。
西中門もある。その根拠として川上貢は、おそらく『門葉記』の記述だろうが「僧侶見聞之外、雑人等不可入之由、仰東西中門守護武士」という記述を引用している。逆に云うとそれしか無いということだが。従ってそちらにも公卿座や殿上(侍廊)はあったのだろうと想像は出来るが、どのように位置していたのかは全く解らない。

弘御所

『勘仲記』」弘安7年10月27日条に延政門院の御幸始の記事があり、東面屏中門の割註に「弘御所悉無御簾」とある。さてこの「弘御所」は何処なのかということになるが、北門を入って東面屏中門から入御したという下りでの割書であるので、御所敷地の北東ということになる。そしてその「弘御所」で延政門院は上皇に対面している。

この弘殿所では「奏事」または「評定」が行なわれ、人々の紙候するところで、院の常御所に近く内と表の中間に位置して対面所または評定所に類する機能をもっていた。川上貢はこれを東対代ではないかと推測する。「対」とは寝殿の向かいにある建物ぐらいの、建物に関する呼称で、「弘御所」とは主上とか院の出居ともなる弘庇のあるスペースぐらいの意味だから同一の建物であっても別に問題はない。逆に呼ばれ方を固有名詞ととらえて、呼ばれ方が違うと別の建物と考えやすいことに注意しなければならない。同じではないと思う根拠があるなら別だが。

ところで、その場合の弘庇とはどれだろうか。寝殿側(西側)の弘庇? それとも東か北にも弘庇が付いた? そこらへんは全く解らない。もしも弘庇の外側を幔幕で覆って御聴聞所にするなどという例があるなら、梁行一間の母屋の両側に弘庇ということかもしれない。するとこうなる。

寝殿造・大炊御門殿

ただ弘庇は下長押(なげし)一段低いので、そこに上皇などの御座というのも不自然な気がするが。
ところで「弘御所悉無御簾」とはどういう意味だろう。上皇が居るような場所は格調高く御簾を下ろすのが普通なのに、この弘御所は格子(蔀)の内側は明障子だったとか。鎌倉後期なら一般にはあり得る話だが、院御所で? しかし弘御所は少しくだけた場所なので、それもあるかもしれない。



初稿 2016.10.13